+6
Marseille (13003)

Appartement 3 pièce(s) 2 chambre(s) 76.7 m²

1
Ascenseur
180 000 €
Réf 73

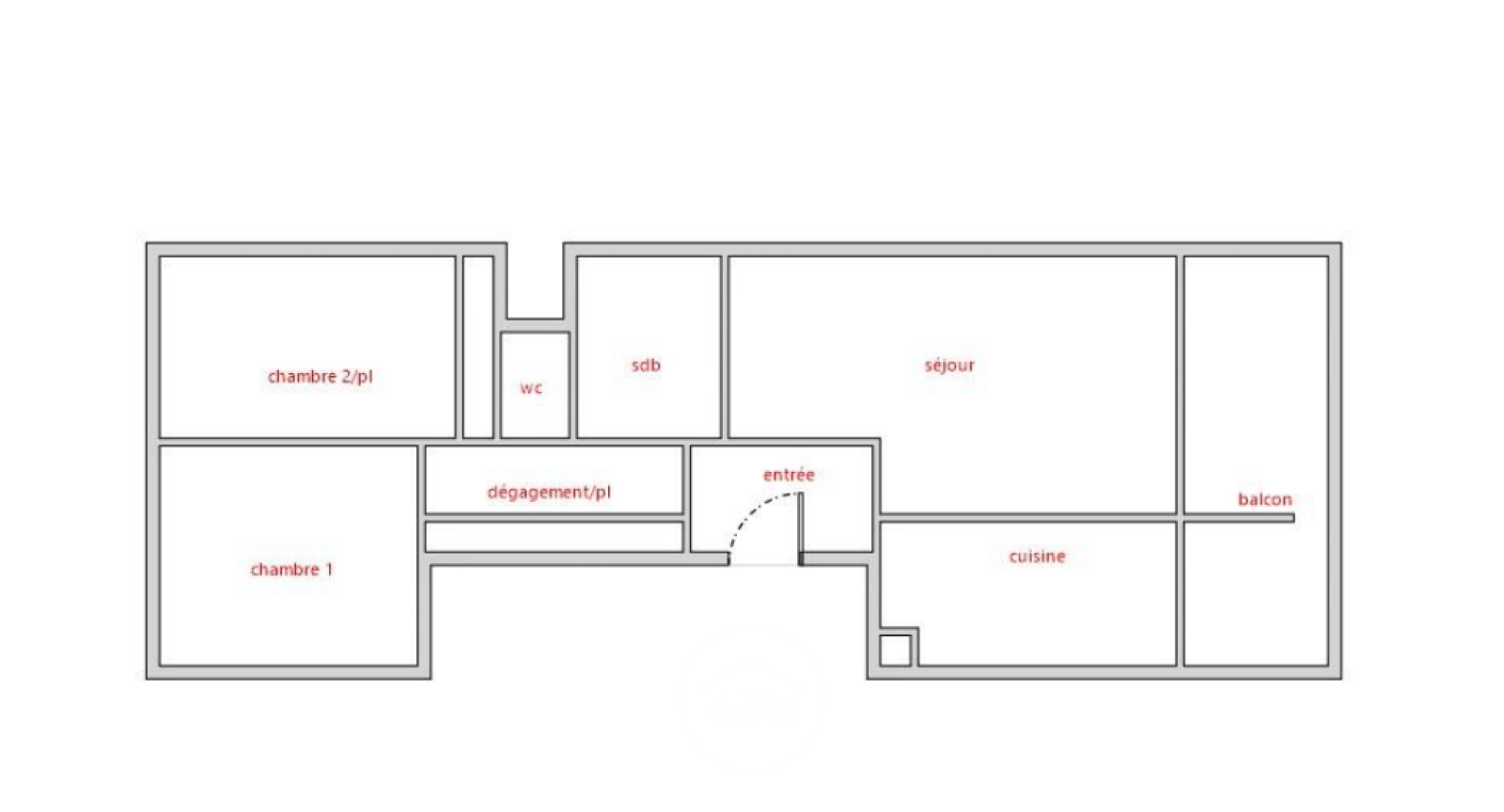
La Bastide immobilière vous présente à la vente en exclusivité cet appartement de type 3 d'environ 62 m2 idéalement situé dans le quartier en plein essor d’Arenc, à proximité immédiate des Terrasses du Port, des Docks, du nouveau quartier d’affaires Euro méditerranée et des transports en commun (Métro M2, Tramway).

Ce bien lumineux traversant se compose d’une entrée, d’un séjour ouvert sur un balcon offrant un bel espace extérieur et une vue dégagée et arborée, une cuisine indépendante, deux chambres, une salle de bain, WC séparés.

Situé au 3ème étages avec ascenseur dans la Résidence Le Marceau une réalisation emblématique de l’architecte Claude Gros, labellisée « Architecture contemporaine remarquable » par le Ministère de la culture.

Idéal pour un premier achat ou un investissement locatif.

Pour plus de renseignements contactez :

Safia SAHNOUN E.I au 06.01.07.44.40 ou par mail à safia@labastideimmobiliere.com RSAC n° 853799815

Bilan énergétique

Diagnostics énergetiques
A propos de ce bien Caractéristiques de ce bien
  • Surface 76,70 m²
  • carrez 62,51 m²
  • 2 chambre(s)
  • 1 salle(s) de bain
  • construit en 1965
  • cuisine séparée
  • Chauffage collectif : convecteur (autre)
  • exposition Est-Ouest
  • 3ème étage
  • 7 étage(s)
  • ascenseur
  • vue Dégagée
  • terrasse
  • visiophone
  • interphone

Info copro

Copropriété
  • Copropriété Oui
  • Lot n° 489
  • Nombre de lots 232
  • Quote part annuelle des charges 3 492 €
  • Plan de sauvegarde Non
  • Statut du syndic Pas de procédure en cours

Financier

Informations financières
Prix de vente 180 000 € Les honoraires d'agence seront intégralement à la charge du vendeur
Charges 291 €
Taxe foncière annuelle 1 526 €

Autour du bien

Découvrez le quartier

Simulation

Calcul des mensualités
* Champs obligatoires
La Bastide Immobilière Agence